Free account required
8
Free account required
$999,900 List $369,900 Sold
Sold on: 05/08/2023 45 Days on market
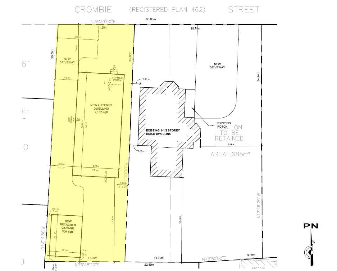
47 Crombie St
· 0
· 0
· -
· -
Listing History
Buy/Sell/Terminated/Expired listing history for 47 Crombie St
Key Facts
Key facts for 47 Crombie St
Property Type
Lots/Land
Parking
-
MLS #
X5987905
Size
-
Basement
-
Listed on
2023-03-24
Lot size
37 x 115.10
Tax
-
Days on Market
45
Approximate Age
-
Maintenance Fee
-
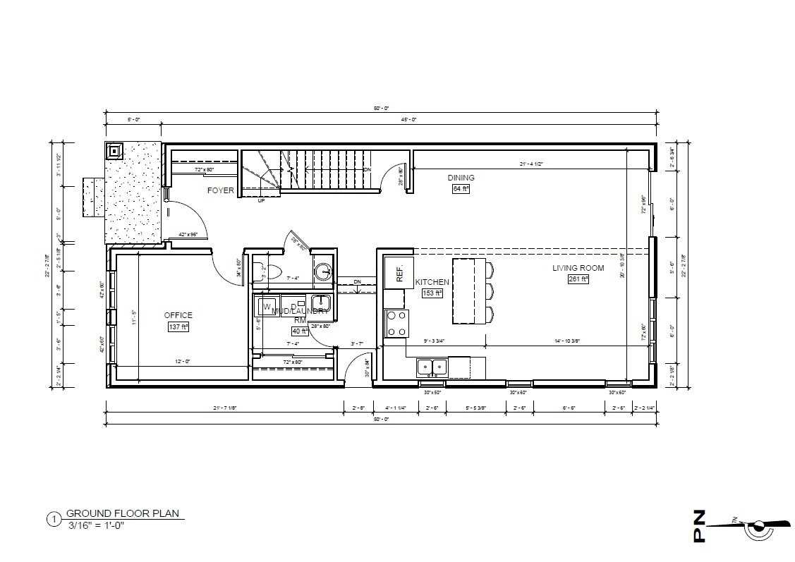
Description
Vacant Lot With Proposed New Build To Be Proudly Built By Lotus Homes. Home Is Approximately 2,100Sqft With 4 Bedrooms And 2 1/2 Bathrooms. 9' Ceilings Throughout The Main Floor. Separate Entrance For The Basement. Basement Can Be Finished At A Separate Cost. Detached 1.5 Car Garage. The Site Plan A...nd Proposed Drawings Are Attached As A Schedule. Buyer Can Use Their Own Plans And Builder If Desired.
Similar Properties (No results)
Courtesy of: RE/MAX TWIN CITY REALTY INC., BROKERAGE